服务热线:
138 7582 5678
产品概述
手动螺旋闸门是一种粉料、晶粒料、颗粒料及小块物料的流量或输送量的主要控制设备。具有结构简单、操纵灵活、重量轻、无卡阻,能随时调整尺度等优点。特别适用于各类固体物料和50mm左右块状、团状物料的输送及流量调节,安装不受角度限制。广泛用于建材、冶金、矿山、电力、化工、玻璃、轻工、粮食等行业的库顶、库底及进出口等,是控制流量变化较大、启动频繁、切断迅速的理想设备。
产品特点
1、具有全通径的通道,等同于平滑的管道,流通能力大,流阻小。
2、具有双重上下游密封,无需润滑的密封部位,密封性好,可靠性高。
3、设计新颖,具有较少的零部件。既满足了管线的工艺性要求,又满足了用户的操作和维护简便性的要求,能保证阀门长期可靠地运行。
4、可提升的闸板密封面,可刮除密封面的的粘着物,自动清除杂物。
5、整体的不锈钢材质,可防止腐蚀破坏。
6、短结构的长度设计,可节省原料、安装空间,也可有效支持管道强度。
7、科学的上密封填料函设计,使上密封安全有效,经久耐用。
8、三角形的支架节省原材料,保证需要的力学性能。
9、阀体加强筋设计提高阀体强度。
10、采用不锈钢阀杆经久耐用,双头螺旋的使用令启闭更为迅速。

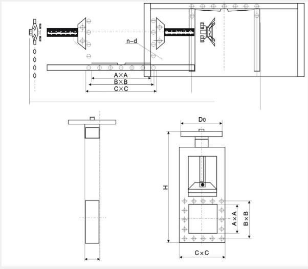
主要连接尺寸
类别 | A×A | B×B | C×C | H | L | n-d | 重量 |
单向 | 200×200 | 256×256 | 296×296 | 820 | 100 | 8-Φ12 | 62 |
250×250 | 306×306 | 346×346 | 930 | 100 | 8-Φ14 | 70.5 | |
300×300 | 356×356 | 396×396 | 1050 | 100 | 8-Φ14 | 81 | |
400×400 | 456×456 | 496×496 | 140 | 100 | 12-Φ14 | 114 | |
450×450 | 510×510 | 556×556 | 1450 | 120 | 12-Φ18 | 130 | |
500×500 | 560×560 | 606×606 | 1610 | 120 | 16-Φ18 | 147 | |
双向 | 600×600 | 660×660 | 706×706 | 1830 | 120 | 16-Φ18 | 169 |
700×700 | 770×770 | 820×820 | 2130 | 140 | 20-Φ18 | 236 | |
800×800 | 870×870 | 920×920 | 2440 | 140 | 20-Φ18 | 303 | |
900×900 | 974×974 | 1030×1030 | 2660 | 160 | 27-Φ23 | 424 | |
1000×1000 | 10741074 | 1130×1130 | 2870 | 160 | 24-Φ23 | 636 | |
说明 | LMD-单向 | I-手轮 |
距地面小于1.7米用手轮,大于1.7米用链轮 | ||||
| LMS-双向 | Ⅱ-链轮 | ||||||
地址:湖南省长沙市雨花区中意一路967号中
海珑悦府1栋1904
手机/微信:138 7582 5678
服务热线:400-608-0731 电话:0731-8202 5555 邮箱:cssufa@163.com 网址:http://www.cssufa.com
热线电话:400-608-0731 138 7582 5678 


