服务热线:
138 7582 5678
产品概述
埋地式放散全焊接球阀主要用于工程输送管道上,用来作为介质的接通和开关调节。埋地式放散球阀可以直埋于地下,也可直接安装,不用设置地下阀门控制室。埋地式放散球阀的整体结构采用全焊接的工业结构。埋地式放散球阀广泛应用于城市燃气的地下管线,天然气输送管线,调压站等领域。埋地式放散球阀只需在地上用T型手柄、或者传动机构进行转动操作即可,简单方便。
产品特点
1、埋地式放散球阀,阀体采用无缝钢管压制成型阀门的整体结构采用全焊接制造工艺,减少了外泄漏,阀门重量大大减轻,安装更便捷采用弹性垫圈及碳纤维增强密封圈,可经手几万次往复运动无泄漏,保证阀门的使用寿命。
2、埋地式放散球阀,阀门的密封可以在-40℃-200℃的条件下连续使用而不会失效连接方式有对焊、法兰、螺纹连接等形式,开启采用手柄、蜗轮传动、电动等方式。埋地式放散球阀深埋地下,不用设置阀门井。

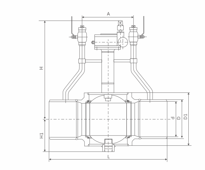
主要外形连接尺寸
DN(mm) | NPS(in) | d | D | D1 | L | A | H2 | H1 |
150 | 6 | 150 | 168 | 273 | 1000 | 400 | 客户指定
| 177 |
200 | 8 | 200 | 219 | 356 | 1100 | 400 | 207 | |
250 | 10 | 250 | 273 | 426 | 1100 | 400 | 249 | |
300 | 12 | 300 | 325 | 510 | 1230 | 500 | 298 | |
350 | 14 | 334 | 356 | 560 | 1350 | 500 | 315 | |
400 | 16 | 387 | 406 | 630 | 1480 | 500 | 380 | |
500 | 20 | 489 | 508 | 813 | 1720 | 600 | 487 | |
600 | 24 | 590 | 610 | 990 | 1800 | 650 | 578 | |
700 | 28 | 686 | 711 | 1140 | 1950 | 700 | 660 | |
800 | 32 | 781 | 813 | 1320 | 2150 | 800 | 752 | |
900 | 36 | 876 | 914 | 1480 | 2400 | 800 | 852 | |
1000 | 40 | 978 | 1020 | 1620 | 2600 | 800 | 954 |
注:该结构长度L为客户未指足袖管长度时尺寸,可根据客户需要两端加袖管,袖管的长度由客户指定。
地址:湖南省长沙市雨花区中意一路967号中
海珑悦府1栋1904
手机/微信:138 7582 5678
服务热线:400-608-0731 电话:0731-8202 5555 邮箱:cssufa@163.com 网址:http://www.cssufa.com
热线电话:400-608-0731 138 7582 5678 


