服务热线:
138 7582 5678
产品详情
产品概述
直埋加长杆全焊接球阀是用于埋地工况的阀门,设计阀门加长杆,维护用长管和控制阀,使在地面就可以控制直埋加长杆全焊接球阀,阀门表面喷涂环氧树脂,现场管道跨接及阴极保护措施,适应埋地使用环境。本公司生产的直埋加长杆全焊接球阀广泛的应用在天然气、石油、化工、供热管道当中,并且性能稳定,使用寿命长。
产品特点
1、可根据管道的施工及设计要求,调整阀体的长短和阀杆的高度。
2、球体的加工精度非常精密,操作轻便,无不良干涉。
3、与同类行业的同种规格产品相比,阀体小,而且外型美观。
4、现代城市里面的车辆及行人通行密集,道路的情况也非常复杂。
5、所以在施工和维护煤气供应管道和供热供应管道时对其施工时间和施工安全的要求非常高。

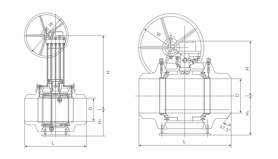
主要外形连接尺寸(Class150~300)
NPS(in) | L | D | H1 | H | W | WT(kg) |
2" | 216 | 51 | 100 | 165 | 460 | 40 |
3" | 283 | 76 | 110 | 190 | 460 | 70 |
4" | 305 | 100 | 130 | 200 | 460 | 95 |
6" | 457 | 150 | 176 | 270 | 460 | 180 |
8" | 521 | 201 | 218 | 330 | 460 | 280 |
10" | 559 | 252 | 270 | 380 | 600 | 440 |
12" | 635 | 303 | 300 | 420 | 600 | 570 |
14" | 762 | 337 | 340 | 450 | 600 | 800 |
16" | 838 | 387 | 395 | 530 | 600 | 1480 |
20" | 991 | 489 | 470 | 600 | 600 | 2400 |
24" | 1143 | 591 | 580 | 680 | 600 | 4050 |
28" | 1346 | 686 | 640 | 760 | 600 | 6460 |
32" | 1524 | 781 | 730 | 870 | 600 | 7200 |
36" | 1727 | 876 | 980 | 980 | 600 | 8700 |
40" | 1956 | 978 | 1010 | 1040 | 600 | 12500 |
地址:湖南省长沙市雨花区中意一路967号中
海珑悦府1栋1904
手机/微信:138 7582 5678
服务热线:400-608-0731 电话:0731-8202 5555 邮箱:cssufa@163.com 网址:http://www.cssufa.com
Copyright © 2022 湖南中苏达尔流体设备有限公司 版权所有
热线电话:400-608-0731 138 7582 5678 


